Logo

Tomáš Volf

Ostatní komerční prostor, 68 m2, Praha

Praha

Popis

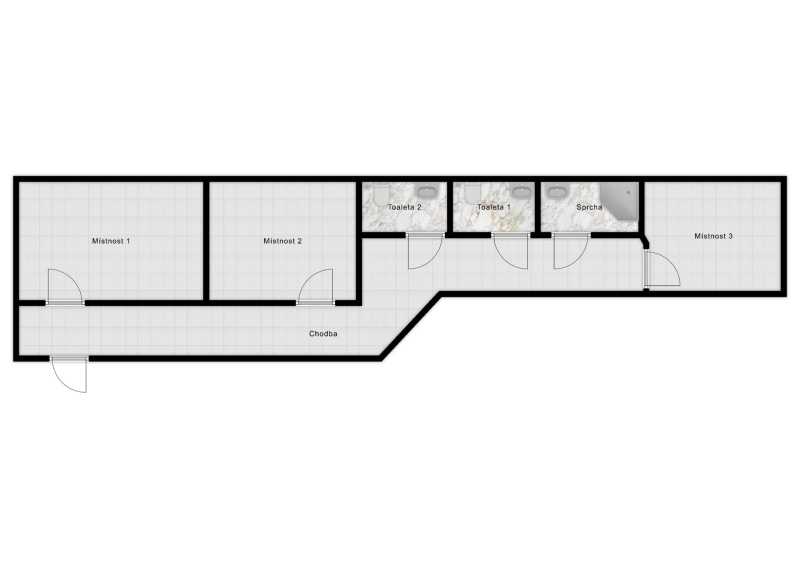
Pronájem komerčních prostor po rekonstrukci v podzemí o velikosti 70 m2 - 3 samostatné místnosti o velikosti 10 m2, 12 m2 a 13 m2, 2 samostatné toalety + samostatná sprcha. Jedná se o podzemní prostory s přístupem přes dům z ulice. Luxusní lokalita ve vedlejší ulici od Pařížské ul. Prostory jsou nově zrekonstruovány s novou vzduchotechnikou. Nové rozvody elektřiny a vody. Prostory jsou vhodné na kanceláře, pedikůru a jiné služby. Nájemné 27 000 Kč/měsíc na prvních 6 měsíců, následně 32 000 Kč/měsíc + náklady na elektřinu. Kauce 2x nájemné Uvedené ceny jsou bez DPH. Odměna RK 27 000 Kč vč. DPH Těším se na osobní setkání při osobní prohlídce.

27 000 Kč / měsíc

ID zakázky 3614833
Druh objektu Zděná
Stav objektu K rekonstrukci
Užitná plocha 68 m2

Kontaktujte mě

K nemovitosti zajistíme

Financování

Financování

Zajistíme nejvýhodnější financování nového domova. Jsme v přímém kontaktu se všemi bankami, kde konzultujeme vaše požadavky a představy. Připravíme vždy několik variant řešení, ze kterých společně vybereme tu nejlepší právě pro vás.

Energie

Energie

Zajistíme nejen výhodný tarif na míru, ale i kompletní přehlášení a administrativu s tím spojenou. Nemusíte se tak o nic starat, potřebné dokumenty a převod zajistíme za Vás.

Interiéry

Interiéry

Naši designéři se postarají, abyste se v novém domě cítili opravdu doma. Změna stávajícího interiéru je pro nás hračka. Ať už chcete zařídit dětský pokoj nebo rovnou celý dům, naši interiéroví designéři Vám pomohou vybrat barvy, sladit váš stávající nábytek nebo navrhnou celý interiér.

Pojištění

Pojištění

Chráníme váš majetek. Ať už potřebujete pojištění ochrany majetku proti požáru či povodni, pojištění proti úrazům nebo neschopnosti splácet, navrhneme vám nejvýhodnější řešení dle vašich potřeb. Pro naše klienty vybíráme to nejlepší z desítek bank a pojišťoven.

Investice

Investice

Uvažujete, kam investovat peníze z prodeje nemovitosti? Investujte s námi tam, kde to dobře známe a získejte možnost zhodnotit své peníze. Máme pro Vás připravenou nabídku investování do nemovitostních projektů s výnosy investičního fondu od 6 % ročně.

Technologie

Technologie

Nabízíme řešení hybridních fotovoltaických elektráren a chytrého bydlení ve spolupráci se společností LOXONE, pro maximální efektivitu a úsporu energií ve vašem novém domově.

Stěhování

Stěhování

Pomůžeme vám ukončit bez starostí i jeden z posledních kroků a rádi vás do nového domova i přestěhujeme.